Zweischalige Außenwandkonstruktion

Zweischalige Außenwandkonstruktion

Konstruktionen mit zweischaligem Mauerwerk sind insbesondere im norddeutschen Bereich weit verbreitet. Die einfachste Ausführung dieser Konstruktion ist das zweischalige Mauerwerk mit Putzschicht. Dieses System besteht aus zwei Konstruktionsebenen aus Verblendmauerwerk.


Zweischaliges Mauerwerk ohne Luftschicht und mit Schattenfuge


Die Innenschale wird zuerst hergestellt und auf der „Außenseite“ mit einer ca. 15 mm starken Putzschicht abgedeckt. Die äußere Schale wird danach vollfugig (mit Fugenglattstrich) aufgemauert.

Als Verbindungselemente zwischen den Schichten werden meist Drahtanker verwendet, die sich ggf. als punktförmige Wärmebrücken zu Schwachstellen in der Gebäudehülle entwickeln können (z.B. durch unsachgemäße Ausführung). An den Fußpunkten muss bei dieser Konstruktion sichergestellt sein, dass Sperrschichten mit Entwässerungsöffnungen angebracht werden, die das Eindringen von Rückstauendem Sickerwasser in die Innenschale ausschließen.

Bei zweischaligem Mauerwerk mit Luftschicht werden die zwei Konstruktionsebenen aus Verblendmauerwerk nacheinander hergestellt und sind durch eine Luftschicht von mindestens 60 mm (mind. 40 mm bei einseitig abgestrichenem Fugenmörtel) voneinander getrennt. Die innere Wand (Innenschale) und die Außenwand (Außenschale) sind durch nicht rostende Stahlanker miteinander verbunden. Durch entsprechende Einbiegungen oder Kunststoffscheiben, die auf den Stahlankern in der Mitte der Luftschicht angebracht sind, wird verhindert, dass Wassertropfen, die sich ggf. in der Luftschicht bilden, in die Innenschale gelangen.

Durch die Außenschale kann Schlagregen etc. in die Luftschicht ablaufen. Die Feuchtigkeit trocknet dort aber ab, ohne dass sie in die Innenwand übergehen kann. Um diesen Vorgang zu beschleunigen, müssen in der Außenschale Öffnungen (z.B. offene Stoßfugen oder Lüftersteine) in regelmäßigen Abständen in den oberen und unteren Anschlüssen der Verblendschale angebracht werden.

Eine Weiterentwicklung dieser Konstruktion stellt das zweischalige Mauerwerk mit Luftschicht und Wärmedämmung dar. Die Innen- und Außenschale sind - wie bei der Ausführung mit einer einfachen Luftschicht - ebenfalls über Drahtanker miteinander verbunden. Der Abstand zwischen beiden Schalen kann bis zu 15 cm betragen. Damit Feuchtigkeit, die durch die Außenschale eindringt, schnell abtrocknen kann, muss die Luftschicht mindestens 4 cm betragen. Dementsprechend können Wärmedämmplatten bis zu einer Stärke von 11 cm in den Zwischenraum eingebaut werden. Die Dämmplatten werden dabei auf die Drahtanker geschoben und mit Kunststoffkrallplatten o.ä. auf der äußeren Seite der Innenschale fixiert.

Wird der Raum zwischen Innen- und Außenschale vollständig mit einem Dämm-Material ausgefüllt, spricht man von einem zweischaligen Mauerwerk mit Kerndämmung. Diese Konstruktion stellt relativ hohe Anforderungen an die Planung und Ausführung sowie an die eingesetzten Materialien, da eine Durchfeuchtung der Dämmung und der Innenschale verhindert werden muss.

Die Anforderungen an diese Konstruktion sind in der DIN 1053 beschrieben. Die Dämmstoffe, die dabei als Kerndämmstoffe eingesetzt werden sollen, müssen über eine bauartliche Zulassung nach DIN 18165 verfügen. Diese Dämm-Materialien sind sowohl insekten- und pilzresitent, chemisch stabil als auch wasserdampfdurchlässig und werden mindestens als „normal entflammbar“ eingestuft.


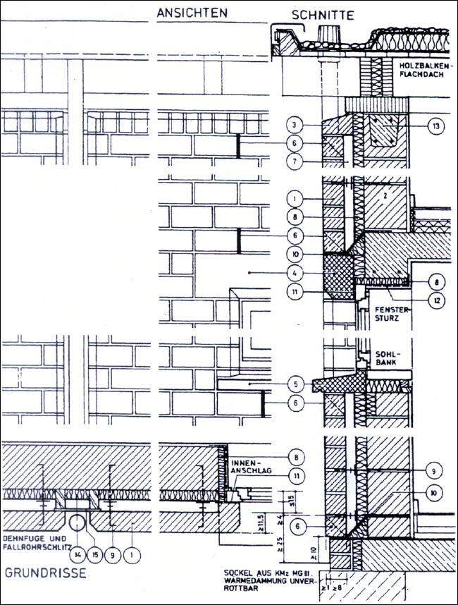
Zweischaliges Mauerwerk mit Luftschicht


1) Außenschale
2) Innenschale
3) Formstein
4) Betonsturz
5) Betonsohlbank
6) Lüftungsöffnung: Offene Stoßfuge
7) Luftschicht
8) Wärmedämmung
9) Drahtanker
10) Sickerwasserdichtung
11) Schlagregendichtung
12) Innenputz auf Putzträger
13) Betonringbalken in U-Schale
14) Regenfallrohr
15) Verrottungsresistente Platte


Das Innenmauerwerk wird für diese Konstruktion wie bei allen zweischaligen Mauerwerken ausgeführt. Für die Außenschale muss ein Verblendmaterial mit einer ausreichenden Wasserdampf-Diffusionsfähigkeit (z.B. keine glasierten Klinker) ausgewählt werden. Der Zwischenraum zwischen den Schalen beträgt bis zu 11,5 cm und wird vollständig (Schüttdämmung) oder bis auf einen so genannten Fingerspalt von 1 cm (Dämmstoffplatten) ausgefüllt. Am Fußpunkt der äußeren Verblendschale müssen Sickerwassersperrschichten eingebaut werden, über denen Öffnungen zum Ablauf für eingedrungenen Schlagregen angebracht werden.

Bei Schüttdämmungen müssen ggf. Rieselsperren eingebaut werden. Als Dämm-Materialien wird bei Neubauten z.B. hydrophobiertes „Perlite“ eingesetzt. Für die nachträgliche Kerndämmung im Bestand können aber auch z.B. Mineralfasern oder andere Materialien in den Zwischenraum „eingeblasen“ werden. Da dieses Verfahren technisch anspruchsvoll ist und ggf. Gesundheitsgefahren durch feine Dämmstoff-Fasern für den Verarbeiter auftreten können, werden solche Arbeiten meist von spezialisierten Fachfirmen angeboten. Bei Konstruktionen mit Dämmstoffplatten wird zwischen Kerndämmplatten mit einem integrierten Belüftungssystem (z.B. Platten mit aufkaschierter Bitumenpappe oder Hartschaumplatten mit dazwischenliegenden Luftkanälen) und Platten ohne Belüftungssystem (z.B. hydrophobierte Mineralfaser- oder Hartschaumplatten) unterschieden.


Zweischaliges Mauerwerk mit Kerndämmung - Beispiel


(C) 2005 - Alle Rechte vorbehalten

Diese Seite drucken