Hydraulischer Abgleich

Hydraulischer Abgleich

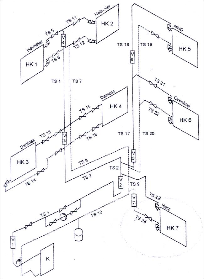
Aufgrund von unterschiedlichen Entfernungen zwischen dem Wärmeerzeuger und den einzelnen Verbrauchern (Heizflächen) kommt es zu unterschiedlichen Druckverhältnissen im System. Verbraucher, die in der Nähe der Heizungspumpe angeordnet sind, werden mit einem höheren Anlagendruck beaufschlagt als entfernter liegende. Da sich in einer nicht einregulierten Anlage ein Grossteil der Wärme bereits auf die näheren Verbraucher aufgeteilt hat, kann es zu einer Unterversorgung der letzten Verbraucher im Netz kommen.


Hydraulischer Abgleich Problem einer möglichen Unterversorgung (oben) und einer mögllichen Überversorgung (unten) einzelner Abnehmer


Ein hydraulischer Abgleich der Heizungsanlage sorgt dafür, dass jeder Verbraucher genau die richtige Heizungswasserdurchflussmenge bekommt, die er für die notwendige Wärmeabgabe benötigt. Eine derartige Optimierung des Heizsystems senkt Energiekosten, verbessert die Umweltbilanz der Heizungsanlage und erhöht deren Wirtschaftlichkeit. Das erzielbare Energieeinsparpotential liegt zwischen 10 % und 30 % bei zusätzlichem Behaglichkeitsgewinn.

In der VOB Teil C wird der hydraulische Abgleich gefordert. Die Bauteile von Heizungsanlagen und Wassererwärmungsanlagen sind so aufeinander abzustimmen, dass die geforderte Anlagenleistung erbracht wird, die Betriebssicherheit gegeben und ein sparsamer und wirtschaftlicher Betrieb möglich ist. Armaturen und Rohrleitungen sind durch Berechnungen so aufeinander abzustimmen, dass auch bei den zu erwartenden wechselnden Betriebsbedingungen eine ausreichende Wassermengenversorgung sichergestellt ist. Da unter Teillastbedingungen ein erhöhter Differenzdruck zu erwarten ist, sind geeignete Maßnahmen zu treffen, um dies zu verhindern. Eine Möglichkeit dazu besteht durch den Einsatz von Selbstregulierenden Pumpen, eine andere durch die Verwendung von Strangregulierventilen.


(C) 2005 - Alle Rechte vorbehalten

Diese Seite drucken