Schutz gegen Bodenfeuchtigkeit
Der Sockelbereich eines Gebäudes bzw. Erdberührte Bauteile sind besonderen Belastungen ausgesetzt:
Unter Bodenfeuchtigkeit versteht man das immer im Boden vorhandene, Kapillargebundene Wasser.
Grundwasser und stauendes bzw. nicht rasch versickerndes Niederschlagswasser wird als so genanntes drückendes Wasser bezeichnet, da es einen hydrostatischen Druck auf eine Wand ausübt. Nichtstauendes Niederschlagswasser, Sickerwasser und Brauchwasser übt keinen hydrostatischen Druck aus (so genanntes nicht drückendes Wasser).
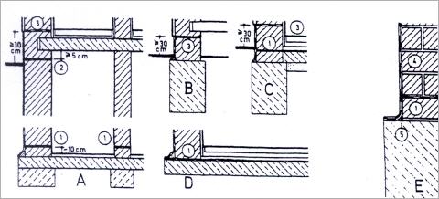
1. Sperrschicht über dem Kellerfußboden
2. Sperrschicht unter der Kellerdecke
3. Sperrschicht über Spritzwassersockel
4. vertikale Sperrschicht gegen seitliche Bodenfeuchtigkeit
5. Mörtelkehle Ø 80 mm
Anordnung der horizontalen Sperrschichten
A) Unterkellertes Gebäude
B) Nichtunterkellertes Gebäude mit Kriechkeller
C) Nichtunterkellertes Gebäude
D) vollflächige Abdichtung des Kellerfußbodens gegen aufsteigende Feuchtigkeit
E) Anschluss der vertikalen Abdichtung und erste horizontale Sperrschicht
Abhängig von diesen Belastungsarten müssen geeignete Abdichtungsmaßnahmen getroffen werden:
Gegen aufsteigende Bodenfeuchtigkeit werden waagerechte Abdichtungen (z.B. Bitumenbahnen, Dach- oder Kunststoffdichtungsbahnen) entweder 30 cm über der Oberkante des Geländes (OKG), 10 cm über der Oberkante des Kellerfußbodens oder in Lagerfugen unter Deckenauflager aufgebracht.
Um das Eindringen seitlicher Bodenfeuchtigkeit zu verhindern, werden z.B. bitumöse Deckanstriche in mehreren Arbeitsgängen auf voll verfugtem Mauerwerk aufgebracht. Bei porösen Baustoffen müssen diese Untergründe vorher mit Putz geglättet werden. Eine andere Möglichkeit ist die Verwendung von kalt zu verarbeitender zweischichtiger Spachtelmasse auf trockenem, Vorgestrichenem Mauerwerk. Alternativ können auch Bitumen bahnen und Kunststoffabdichtungen verwendet werden. Zu beachten ist in jedem Fall, dass die vertikale Abdichtungen lückenlos an die horizontalen anschließen müssen. Die Abdichtungen dürfen nicht durch Verfüllmaterial beschädigt werden.
Ein besonderes Problem ist hier beim oberen Abschluss der Übergang der Abdichtung von horizontal zu vertikal, dabei ist unbedingt eine ausreichende Tiefe, Überlappung und/oder Verpressung zu beachten.
Bei nicht drückendem Wasser muss das Material der Abdichtungen gegenüber Bauwerksbewegungen sowie gegen Wasser (z.B. Lösungen aus Beton und Mörtel) unempfindlich sein. Schwindrisse der Konstruktion bis 2 mm Stärke müssen überbrückt werden können, ohne dass es zu einer Beschädigung kommt. Verwendet werden können z.B. Bitumendichtungsbahnen mit Metall- oder Vlieseinlage (mit 10 cm Stoßüberdeckungen).
Gegen drückendes Wasser sind nur bahnenförmige Abdichtungen wirksam, die unempfindlich gegenüber wässrigen, chemikalischen Lösungen sein müssen. Die Abdichtung der Bodenplatte muss als Wanne ausgebildet und fugenlos mit der Wandabdichtung verbunden werden. Die Abdichtungsoberkante liegt bei nichtbindigen Böden (z.B. wasserdurchlässige Böden, z.B. Sand und Kies) bei 30 cm über den höchsten Grundwasserstand und bei bindigen Böden (d.h. wenig wasserdurchlässige Böden, z.B. Ton, Lehm, Schluff, Torf) bei 30 cm über der geplanten Geländeoberfläche. Die Abdichtung muss ebenfalls gegenüber Bauwerksbewegungen unempfindlich sein und Schwindrisse bis 5 mm überbrücken können. Die Ablösung der Bahnen ist mit Hilfe von zusätzlichen Mauerwerksschalen zu verhindern. Erforderlich ist auch eine sorgfältige Vorbereitung des Untergrundes und die Rundung aller Kanten und Kehlen.
Werden bindige Böden sorgfältig handverdichtet verfüllt, dann sind sie annähernd wasserundurchlässig. Diese Vorgehensweise war vor dem Einsatz von Bitumen eine gängige Abdichtungsmethode.

